60
m² Construidos
10
m² Porche + Terraza
2
Habitaciones
1
Baños
Rústico
Estilo
El estilo moderno combina líneas limpias, colores neutros para crear espacios funcionales y llenos de luz.
2 meses
Tiempo de ejecución
Gracias a nuestras estructuras metálicas prefabricadas y un sistema de construcción industrializada, reducimos los tiempos de ejecución, asegurando una construcción rápida y de alta calidad.
¿Y si pudieras tener tu propio espacio en la naturaleza, sin complicaciones y con todo lo necesario para disfrutar desde el primer día?
En Sistemas Constructivos DIY hemos diseñado una vivienda compacta, funcional y estéticamente impecable. Un modelo de 61 m² que, aunque pequeño en tamaño, es gigante en posibilidades.
✔️ Compacta, eficiente y acogedora
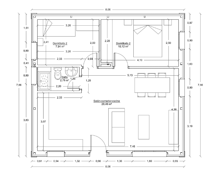
Con una distribución perfectamente optimizada, esta mini vivienda cuenta con:
-
Un salón-comedor con cocina abierta de casi 30 m²
-
Dos dormitorios: uno principal y uno auxiliar
-
Un baño completo
-
Y un porche cubierto que invita a disfrutar del aire libre
Todo ello construido con nuestro sistema estructural de acero y fachada ventilada en ladrillo caravista y zócalo de piedra. Un diseño atemporal, robusto y con un encanto rústico que se integra perfectamente en cualquier entorno natural.
🌱 Ideal como segunda residencia, alojamiento rural o espacio adicional
Su tamaño compacto la convierte en una opción ideal para:
-
Tener una casa en una finca o parcela
-
Crear un alojamiento turístico rural
-
Añadir un espacio independiente junto a una vivienda principal (como casa de invitados, despacho o zona de retiro)
Y como todas nuestras construcciones, se entrega completamente terminada y lista para entrar a vivir. Sin sorpresas. Sin obras eternas.
🛠️ Construcción industrializada, montaje rápido
Este modelo se fabrica íntegramente en nuestra nave y se transporta al terreno para su instalación. Gracias a nuestro sistema, la vivienda puede estar lista en cuestión de semanas, con acabados resistentes y una eficiencia energética superior.

